Page 805 - Furniture Cabinetry Hardware-FloorKitchenResource.com
P. 805
Drawer Slides
Accessories
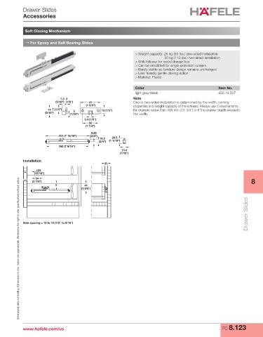
Soft Closing Mechanism
→ For Epoxy and Ball Bearing Slides
> Weight capacity: 25 kg (55 lbs.) one-sided installation
50 kg (110 lbs.) two-sided installation
> With follower for wood drawer box
> Can be retrofitted for single extension runners
> Barely visible so furniture design remains unchanged
> User friendly gentle closing action
> Material: Plastic
Color Item No.
light gray/black 432.13.507
7.3 3 Note
(5/16") (1/8") 41 One or two-sided installation is determined by the width, running
(1 5/8") properties and weight capacity of the runners. Always use 2 mechanisms
14 7 (1/4") 2 12 (1/2") for drawers wider than 400 mm (15 3/4") or if the drawer depth exceeds
(9/16") (1/16") the width.
3.4 (1/8")
32
(1 1/4")
9.25
201 (7 15/16") (3/8")
18.5 26.5
(3/4") (1 1/16")
192 (7 9/16")
10.4
(7/16")
Installation
S
24
(15/16")
54
Dimensional data not binding. Dimensions in mm, inches are approximate. We reserve the right to alter specifications without notice.
(2 1/8") 8
Y 41
(1 5/8")
Drawer Slides
Side spacing = 12 to 15 (1/2" to 9/16")
www.hafele.com/us FC 8.123

