Page 803 - Furniture Cabinetry Hardware-FloorKitchenResource.com
P. 803
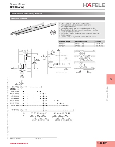
Drawer Slides
Ball Bearing
Over Extension, Self-Closing, Premium
→ Bottom Mounted
> Weight capacity: max. 68 kg (150 lbs.)/pair
> Patented middle rail reinforcement, buffer and
pull-out prevention clip
> High lateral stability due to specially designed profiles
> Special cabinet rail shape prevents scraping of the rollers
> Middle rail return prevention
VARIANTA
5 > 2 quiet-action rollers, 6 friction bearing-mounted nylon rollers
> Double captive
> Material: Steel, epoxy-coated; Color: white RAL 9010
Installed length Extended length Item No.
500 (20") 540 (21 1/4") 423.46.751
550 (22") 570 (22 1/2") 423.46.756
10
12.7 37 (3/8")
(1/2") (1 7/16")
28
2 (1 1/8")
(1/16")
11 32
61.5 (7/16") (1 1/4")
(2 7/16") Opened position
48.5
(1 15/16")
1.5
(1/16") 32
(1 1/4")
6.5
(1/4") Opening Closing
13.5
(9/16")
Dimensional data not binding. Dimensions in mm, inches are approximate. We reserve the right to alter specifications without notice.
8
37
(1 7/16")
2
(1/16")
200 (7 7/8")
Cabinet
front edge
250 (9 13/16")
300 (11 13/16") Drawer Slides
350 (13 3/4")
400 (15 3/4")
450 (17 11/16")
500 (19 11/16")
550 (21 5/8")
600 (23 5/8")
1 2 3 4 5 6 7 8 9 10 11 12 13
0 96 160 224 352 416 480
(3 3/4") (6 1/16") (8 13/16") (13 7/8") (16 3/8") (18 7/8")
128 192 256 384 448 512
(5 1/16") (7 9/16") (10 1/16") (15 1/8") (17 5/8") (20 3/16")
Varianta screws page 12.16
www.hafele.com/us FC 8.121

