Page 587 - Furniture Cabinetry Hardware-FloorKitchenResource.com
P. 587
Sliding and Roller Shutter Systems
Coplanar Doors
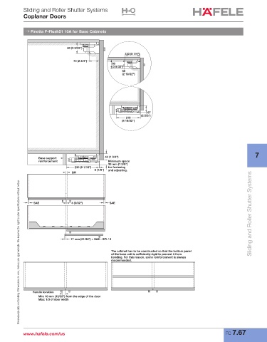
→ Finetta F-Flush51 10A for Base Cabinets
80 (3 5/32")
133 (5 1/4")
70 (2 3/4")
80
(3 5/32")
66
(2 19/32")
67
(2 5/8")
218
(8 19/32")
7
Base support 44 (1 3/4")
reinforcement Minimum space
35 mm (1 3/8")
230 (9 1/16") for fastening
3 (1/8") and adjusting.
SPI
Dimensional data not binding. Dimensions in mm, inches are approximate. We reserve the right to alter specifications without notice.
SAE 4 (5/32") SAE Sliding and Roller Shutter Systems
17 mm (21/32") + SAE - SPI / 2
The cabinet has to be constructed so that the bottom panel
of the base unit is sufficiently rigid to prevent it from
bending. For this reason, some reinforcement is always
recommended.
Handle location
Min: 10 mm (13/32") from the edge of the door
Max: 1/3 of door width
www.hafele.com/us FC 7.67

