Page 585 - Furniture Cabinetry Hardware-FloorKitchenResource.com
P. 585
Sliding and Roller Shutter Systems
Coplanar Doors
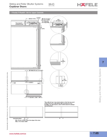
→ Finetta F-Flush51 10A for Upper Cabinets
3 (1/8")
230 (9 1/16") Minimum space
35 mm (1 3/8") 218
for fastening (8 19/32")
Top support and adjusting.
reinforcement
63 (2 15/32")
44
(1 3/4")
15
(19/32") 7
SPI MAX 50 mm (1 31/32")
Dimensional data not binding. Dimensions in mm, inches are approximate. We reserve the right to alter specifications without notice.
132
(5 3/16")
SAE 4 (5/32") SAE
28
(1 3/32") Sliding and Roller Shutter Systems
17 (21/32") + SAE - SPI / 2
The cabinet has to be constructed so that the top panel
of the wall unit is sufficiently rigid to prevent it from
bending. For this reason, some reinforcement is always
recommended.
Handle location
Min: 10 mm (13/32") from the edge of the door
Max: 1/3 of door width
www.hafele.com/us FC 7.65

