Page 583 - Furniture Cabinetry Hardware-FloorKitchenResource.com
P. 583
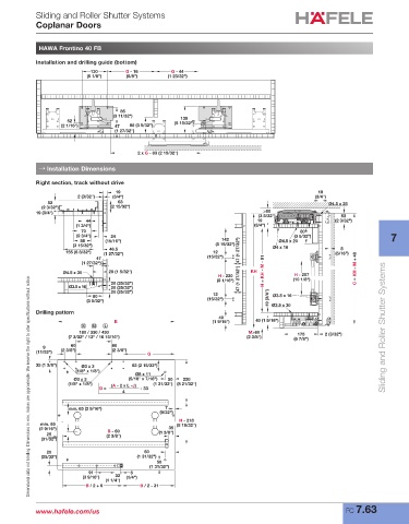
Sliding and Roller Shutter Systems
Coplanar Doors
HAWA Frontino 40 FB
Installation and drilling guide (bottom)
130 G - 16 G - 44
(5 1/8") (5/8") (1 23/32")
85
(3 11/32")
139
52 (5 15/32")
(2 1/16") 47 80 (3 5/32")
(1 27/32")
2 x G - 63 (2 15/32")
→ Installation Dimensions
Right section, track without drive
19 19
2 (3/32") (3/4") (3/4")
53 63 Ø4.5 x 25
(2 3/32") (2 15/32")
19 (3/4") ≥80
(3 5/32") 53
44 19 (2 3/32")
(1 3/4") (3/4")
70 80
(2 3/4") 24 (3 5/32") 7
88 (15/16") 142 Ø4.5 x 20
(3 15/32") (5 19/32") Ø4 x 16
8
46.5
155 (6 3/32") (1 27/32") 12 47 (1 27/32") (5/16")
47 (15/32")
(1 27/32")
Ø4.5 x 30 29 (1 5/32") KH H = KH - M - 91 C = KH - M + 40
H - 230 H - 257
Dimensional data not binding. Dimensions in mm, inches are approximate. We reserve the right to alter specifications without notice.
(9 1/16") 47 (1 27/32") (10 1/8")
20 (25/32")
Ø3.5 x 16 20 (25/32")
20 (25/32")
80 12 19 (3/4") Ø3.5 x 16
(3 5/32") (15/32") Ø3.5 x 30
Drilling pattern
40
B (1 9/16") 40 (1 9/16")
180 / 330 / 430 M≥60 175 2 (3/32") Sliding and Roller Shutter Systems
(7 3/32" / 13" / 16 15/16") (2 3/8") (6 7/8")
9 60 60
(11/32") (2 3/8") (2 3/8") G
35 (1 3/8") Ø3 x 3 63 (2 15/32")
(1/8" x 1/8")
Ø8 x 11
Ø3 x 3 (5/16" x 7/16") 50 220
(1/8" x 1/8") (A - 2 x L -J) (1 31/32") (8 21/32")
G = - 33
4
min. 65 (2 9/16") 7
(9/32")
H - 218
min. 65 (8 19/32")
(2 9/16") B - 60 35
25 (2 3/8") (1 3/8")
(31/32")
20 50
(25/32") (1 31/32")
50
(1 31/32")
91 6
(3 9/16") 32 (1/4")
(1 1/4")
B / 2 + 6 B / 2 - 31
www.hafele.com/us FC 7.63

