Page 579 - Furniture Cabinetry Hardware-FloorKitchenResource.com
P. 579
Sliding and Roller Shutter Systems
Coplanar Doors
Häfele Slido F-Flush52 20A
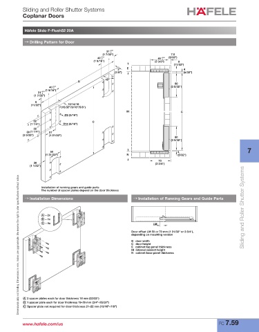
→ Drilling Pattern for Door
+0.5
31 -0
(1 7/32") 7.5
+0.5 +0.5 (9/32")
40 -0 60 -0
(1 9/16") (2 3/8") 9
(11/32")
3 E 4
(1/8") (5/32")
45º
B
80
+0.5 (3 5/32")
40 -0
+0.5 (1 9/16")
31 -0
(1 7/32")
9
(11/32") 12/14/16
(15/32"/9/16"/5/8")
IH C
Ø5 (3/16")
32 C
(1 1/4") R14 (9/16")
32
80 (1 1/4") 51
(3 5/32") (1 31/32")
80
(3 5/32")
7
50 4
(1 31/32") N (5/32")
70
26 (2 3/4")
(1 1/32")
Dimensional data not binding. Dimensions in mm, inches are approximate. We reserve the right to alter specifications without notice.
Installation of running gears and guide parts
The number of spacer plates depend on the door thickness
→ Installation Dimensions → Installation of Running Gears and Guide Parts
A – 2x Sliding and Roller Shutter Systems
B – 1x
C – 0x LM
Door offset LM 50 or 70 mm (1 31/32" or 2 3/4"),
depending on mounting version
B door width
C door height
E cabinet top panel thickness
IH internal cabinet height
N cabinet base panel thickness
A 2 spacer plates each for door thickness 18 mm (23/32")
B 1 spacer plate each for door thickness 19–20 mm (3/4"–25/32")
C Spacer plate not required for door thickness 21–22 mm (13/16"–7/8")
www.hafele.com/us FC 7.59

