Page 955 - Furniture Cabinetry Hardware-FloorKitchenResource.com
P. 955
Hinges and Stays
Lid and Flap Stays
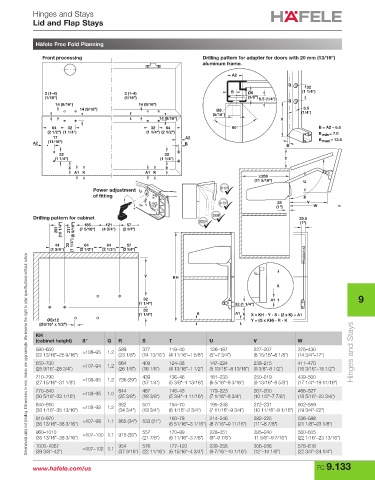
Häfele Free Fold Planning
Front processing Drilling pattern for adapter for doors with 20 mm (13/16”)
aluminum frame.
A2
32
2 (1–4) 2 (1–4) B Ø9 (1 1/4")
(1/16") (1/16") (3/8") 6.5 (1/4")
14 (9/16") 14 (9/16")
14 (9/16") Ø8 6.5
(5/16") (1/4")
14 (9/16") X
64 32 32 64 90° B = A2 – 5.5
(2 1/2") (1 1/4") (1 1/4") (2 1/2") B min = 7.0
17 A2 B max = 13.5
A2 (11/16") B B
32 32
(1 1/4") (1 1/4") T
X X
A1 K A1 K
288
(11 5/16") U
Power adjustment
of fitting ß
25 V
(1") W
Drilling pattern for cabinet 25.5
(1")
(10 1/4") (7 5/16") (4 3/4") (2 1/4")
57
185
121
261 217 (1 1/4") (8 9/16")
44 32 64 64 57
(1 3/4") (2 1/2") (2 1/2") (2 1/4")
Dimensional data not binding. Dimensions in mm, inches are approximate. We reserve the right to alter specifications without notice.
Y KH
X
32 A1 9
(1 1/4") 32 (1 1/4")
32
(1 1/4") K A1 X X = KH - Y - S - (2 x K) + A1
Ø5x12 Y = (Q x KH) - R - K
(Ø3/16" x 1/2")
KH
(cabinet height) ß° Q R S T U V W
580–650 ≈108–95 1.2 589 377 119–40 126–197 227–207 375–430
(22 13/16"–25 9/16") (23 1/8") (14 13/16") (4 11/16"–1 5/8") (5"–7 3/4") (8 15/16"–8 1/8") (14 3/4"–17") Hinges and Stays
650–730 664 409 124–38 147–224 238–215 411–470
(25 9/16"–28 3/4") ≈107–94 1.2 (26 1/8") (16 1/8") (4 13/16"–1 1/2") (5 13/16"–8 13/16") (9 3/8"–8 1/2") (16 3/16"–18 1/2")
710–790 ≈108–95 1.2 736 (29") 439 136–46 161–233 250–219 439–500
(27 15/16"–31 1/8") (17 1/4") (5 3/8"–1 13/16") (6 5/16"–9 3/16") (9 13/16"–8 5/8") (17 1/4"–19 11/16")
770–840 644 467 146–43 179–223 267–200 466–527
(30 5/16"–33 1/16") ≈108–95 1.0 (25 3/8") (18 3/8") (5 3/4"–1 11/16") (7 1/16"–8 3/4") (10 1/2"–7 7/8") (18 5/16"–20 3/4")
840–910 ≈108–98 1.2 882 501 154–70 195–248 272–231 502–559
(33 1/16"–35 13/16") (34 3/4") (19 3/4") (6 1/16"–2 3/4") (7 11/16"–9 3/4") (10 11/16"–9 1/16") (19 3/4"–22")
910–970 160–78 214–246 282–225 536–588
(35 13/16"–38 3/16") ≈107–98 1.1 865 (34") 533 (21") (6 51/16"–3 1/16") (8 7/16"–9 11/16") (11"–8 7/8") (21 1/8"–23 1/8")
960–1010 ≈107–100 1.1 915 (36") 557 170–99 228–251 295–240 560–605
(35 13/16"–38 3/16") (21 7/8") (6 11/16"–3 7/8") (9"–9 7/8") 11 5/8"–9 7/16") (22 1/16"–23 13/16")
1000–1067 954 576 177–120 239–256 306–256 578–616
(39 3/8"–42") ≈107–102 1.1 (37 9/16") (22 11/16") (6 15/16"–4 3/4") (9 7/16"–10 1/16") (12"–10 1/6") (22 3/4"–24 1/4")
www.hafele.com/us FC 9.133

