Page 952 - Furniture Cabinetry Hardware-FloorKitchenResource.com
P. 952
Hinges and Stays
Lid and Flap Stays
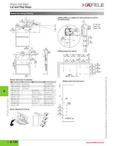
Häfele Free Swing Planning
Drilling pattern for adapter for doors with 20 mm (13/16”)
aluminum frame.
179 M B
(7 1/16") 102
(4")
40 143 B = A2 – 5.5
(1 9/16") (5 5/8")
N
A2 B min = 7.0
126 N1 B max = 13.5
6.5
(4 15/16") (1/4") 218 (8 9/16") + A1
O B Ø9
(3/8")
32
Ø8 (1 1/4")
(5/16")
32
90° (1 1/4")
40
(10 7/8") 36
(1 7/16") 6.5
100 Drilling pattern for cabinet (1/4")
273 (3 15/16") 25.5
(10 3/4") (1")
2 (1/16")
255 191 127 95
(10 1/16") (7 1/2") (5") (3 3/4") 31
211 (2 1/2") (2 1/2") 32 (1 1/4") (2 1/2") 31 (1 1/4") (1 1/4")
(8 5/16")
64
64
64
370-800 (14 9/16"-31 1/2") 305 (1 5/16") (1 5/16")
(12")
33
33
65
32
(1 1/4") (2 9/16")
97
32 (3 13/16")
(1 1/4")
24 Ø5x12
(1") (Ø3/16" x 1/2")
Sample door sizes for planning
M N N1 O Drilling pattern for front panel
366 (14 7/16") 40 (1 9/16") – 237.4 (9 3/8")
396 (15 9/16") 28.9 (1 1/8") – 265.3 (10 7/16") A1
446 (17 9/16") 10.3 (3/8") – 311.7 (12 1/4")
9 496 (19 1/2") – 8.3 (5/16") 358.1 (14 1/8")
546 (21 1/2") – 26.9 (1 1/16") 404.6 (15 15/16")
596 (23 7/16") – 45.4 (1 13/16") 451 (17 3/4")
646 (25 7/16") – – – 64 (2 1/2") 497.4 (19 9/16") X A2
Hinges and Stays Power adjustment of fitting 101.2 (4") 590.2 (23 1/4") (1 1/4") (5/8") Dimensional data not binding. Dimensions in mm, inches are approximate. We reserve the right to alter specifications without notice.
71.4 (2 13/16")
516 (20 5/16")
666 (26 1/4")
82.6 (3 1/4")
696 (27 3/8")
543.8 (21 7/16")
15.5
746 (29 3/8")
–
–
119.7 (4 11/16") 636.7 (25 1/16")
796 (31 5/8")
32
32
(1 1/4")
32
(1 1/4")
15.5 (5/8") + A2
FC 9.130 www.hafele.com/us

