Page 949 - Furniture Cabinetry Hardware-FloorKitchenResource.com
P. 949
Hinges and Stays
Lid and Flap Stays
Häfele Free Up Planning
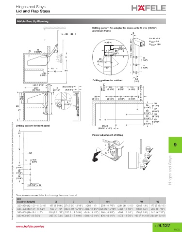
Drilling pattern for adapter for doors with 20 mm (13/16”)
aluminum frame.
U = KH - HH - K B
B = A2 – 5.5
T B min = 7.0
A2 B max = 13.5
6.5
40 (1/4") X + 16 (5/8") + A1
K (1 9/16") B Ø9
(3/8")
U 32
Ø8 (1 1/4")
(5/16")
32
V1 90° (1 1/4")
V2 HH
54
(2 1/8")
6.5
Drilling pattern for cabinet (1/4")
40 (1 9/16")
277 2 36 (1 7/16") (10 3/8") 232 168 104
(10 7/8") (1/16") 25.5 (1") 264 (9 1/8") (6 5/8") (4 1/8") 40 (1 9/16") (1 9/16")
152 32 64 64 64 40
(6") (1 1/4") (2 1/2") (2 1/2") (2 1/2")
2
D (1/16") 35
KH 35 (1 1/4")
(1 1/4")
67
LH 32 (2 5/8")
(1 1/4") 99
32 (3 7/8")
(1 1/4") 131
32 (5 3/16")
Dimensional data not binding. Dimensions in mm, inches are approximate. We reserve the right to alter specifications without notice.
(1 1/4")
Drilling pattern for front panel Ø5x12
(Ø3/16" x 1/2")
A1
Power adjustment of fitting
9
X
A2
15.5
(5/8")
32
(1 1/4")
32 Hinges and Stays
(1 1/4")
32
(1 1/4")
15.5 (5/8") + A2
Sample measurement table for choosing the correct model.
KH
(cabinet height) X D LH HH T V1 V2
320–360 (12 1/2"–14 3/16") 157 (6 3/16") 274.5 (10 13/16") >280 (11") 278 (10 7/8") >281 (11 1/16") 128 (5 1/6") 177 (6 15/16")
345–420 (13 1/2"–16 1/2") 185 (7 1/4") 302.5 (11 15/16") >308 (12 1/8") 328 (12 15/16") >333 (13 1/8") 146 (5 3/4") 205 (8 1/16")
380–500 (16–19 11/16") 220 (8 21/32") 337.5 (13 5/16") >343 (13 1/2") 390 (15 3/8") >393 (15 1/2") 168 (6 5/8") 240 (9 7/16")
430–600 (17–23 5/8") 265 (10 3/8") 382.5 (15 1/16") >388 (15 1/4") 470 (18 1/2") >473 (18 5/8") 196 (7 11/16") 284 (11 3/16")
www.hafele.com/us FC 9.127
10/22

