Page 943 - Furniture Cabinetry Hardware-FloorKitchenResource.com
P. 943
Hinges and Stays
Lid and Flap Stays
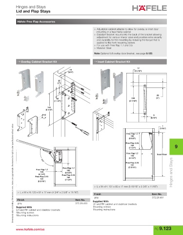
Häfele Free Flap Accessories
> Adjustable cabinet adapter to allow for overlay or inset door
mounting in a face frame cabinet
> Stabilizer bracket mounts into the back of the bracket allowing
adjustment for various interior sizes and provides extra security
and durability for the mounting by reducing the torque that is
applied to the front mounting screws
> For use with Free Flap 1.7 and 3.5
> Material: Steel
Note Optional full overlay door bracket, see page 9.125.
→ Overlay Cabinet Bracket Kit → Inset Cabinet Bracket Kit
17
19
(3/4") (11/16")
25
(1")
25
32 138 (1")
(1 1/4") (5 7/16")
140
(5 1/2")
8
(5/16")
Dimensional data not binding. Dimensions in mm, inches are approximate. We reserve the right to alter specifications without notice.
1
(1/16")
Free Flap 1.7
168
(6 5/8")
Free Flap 3.15
184 9
(7 1/4")
Free Flap 1.7 Inset Door
108
(4 1/4")
107°
Free Flap 3.15
131
Free Flap 1.7 (5 3/16")
Free Flap 1.7 168
108 (6 5/8") Hinges and Stays
(4 1/4") Free Flap 3.15
Free Flap 3.15 184
131 (7 1/4")
(5 3/16")
> L x W x H: 151 x 85 x 17 mm (5 15/16" x 3 3/8" x 11/16")
> L x W x H: 120 x 67 x 17 mm (4 3/4" x 2 5/8" x 11/16")
Finish Item No.
gray 372.29.401
Finish Item No. Supplied With
gray 372.29.400 LH and RH cabinet and stabilizer brackets
Supplied With Mounting screws
LH and RH cabinet and stabilizer brackets Mounting instructions
Mounting screws
Mounting instructions
www.hafele.com/us FC 9.123

