Page 650 - Furniture Cabinetry Hardware-FloorKitchenResource.com
P. 650
55
55
(2 3/16")
(2 3/16")
17
17
12
12
55
55
55
55
(2 3/16")(2 3/16")
(2 3/16")(2 3/16")
17
17
17
17
0-6 (0-1/4") 0-6 (0-1/4") (11/16")(11/16") 12 12 40 (1 9/16") 0-6 40 (0-1/4") (1 9/16") 0-6 (0-1/4") (11/16")(11/16") 12 12 40 (1 9/16") 40 (1 9/16") 0-6 (0-1/4") 26 (1") (11/16") (1/2") 40 59 (1 9/16") (2 5/16") 0-6 (0-1/4") 26 (1") (11/16") (1/2") 59 (2 5/16") 40 (1 9/16") 79 (3 1/8")
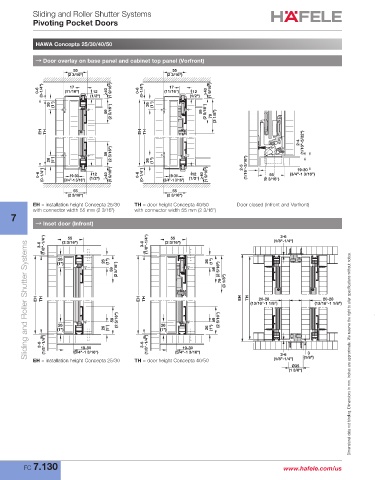
Sliding and Roller Shutter Systems (1/2") (1/2") EH TH EH TH
(1/2") (1/2")
Pivoting Pocket Doors 26 (1") 26 (1")
(1")
(1")
26
26
59 (2 5/16") 59 (2 5/16") 59 (2 5/16") 79 59 (3 1/8") (2 5/16") 79 (3 1/8")
HAWA Concepta 25/30/40/50 26 (1") 59 (2 5/16")
EH TH EH TH EH TH EH TH 26 (1")
12
→ Door overlay on base panel and cabinet top panel (Vorfront) 0-6 (0-1/4") 19-30 (1/2") 40 (1 9/16") 0-6 (0-1/4") 19-30 (1/2") 40 (1 9/16")
12
55 55 59 (2 5/16") 59 (2 5/16") 55 55 (3/4"-1 3/16") (3/4"-1 3/16")
55
55
(1")
(1")
26 (1") 26 (2 3/16") (2 3/16") 26 (1") 26 (2 3/16") (2 3/16") (2 3/16") (2 3/16")
(1 9/16")
(0-1/4")
17
17
(1 9/16")
17
17
(1 9/16")
0-6 (0-1/4") 0-6 (0-1/4") 0-6 (0-1/4") 0-6 (0-1/4") (11/16") (11/16") 40 12 0-6 (1 9/16") 40 12 (0-1/4") 0-6 40 (0-1/4") (1 9/16") 40 0-6 (1 9/16") (0-1/4") 0-6 (11/16") (11/16") 40 12 12 40 (1 9/16") 40 (1 9/16")
12
12
12
12
40
19-30 19-30
19-30 19-30
(1/2") (1/2") (1/2")
(1/2") (1/2") (1/2")
(1/2")
(1/2")
(1")
(1")
26
26
26 (1") (3/4"-1 3/16") (3/4"-1 3/16") 26 (1") (3/4"-1 3/16") (3/4"-1 3/16")
55 55 55 55
(2 3/16")(2 3/16") 59 (2 5/16") 59 (2 5/16") (2 3/16")(2 3/16") 59 (2 5/16") 79 (3 1/8") 59 (2 5/16") 79 (3 1/8")
EH TH EH TH EH TH EH TH
2-4 (1/16"-5/32")
59 (2 5/16") (2 5/16")
26 (1") 26 (1") 26 (1") 59 26 (1") 2-5
(1/16"-5/32")
(1/16"-5/32")
19-30
(0-1/4")
(0-1/4") (3/4"-1 3/16") (3/4"-1 3/16") 2-4 (1/2") (0-1/4") (3/4"-1 3/16") (3/4"-1 3/16") (1/2") (2 3/16")
(0-1/4")
0-6 0-6 12 40 (1 9/16") 12 40 (1 9/16") 0-6 12 40 (1 9/16") 12 40 (1 9/16") (1/16"-3/16") 55 (3/4"-1 3/16")
0-6
2-4
19-30
19-30
19-30
19-30
(1/2")
(1/2")
55
55
55
55
2-5 (1/16"-3/16") 2-5 (1/16"-3/16") (2 3/16") (2 3/16") (2 3/16") (2 3/16")
19-3019-30
EH = installation height Concepta 25/30 TH = door height Concepta 40/50 Door closed (Infront and Vorfront) 55
55
(3/4"-1 3/16")(3/4"-1 3/16")
55
55
with connector width 55 mm (2 3/16") with connector width 55 mm (2 3/16") 3-6 (1/8"-1/4") (2 3/16") 3-6 (1/8"-1/4") (2 3/16")
(2 3/16")(2 3/16")
7
→ Inset door (Infront)
26
(1") 3-6 26 (1") 59 (2 5/16") 26 (1") 59 (2 5/16")
55
55
55
55
Sliding and Roller Shutter Systems
3-6 (1/8"-1/4") 3-6 (1/8"-1/4") (2 3/16")(2 3/16") 3-6 (1/8"-1/4") 3-6 (1/8"-1/4") (2 3/16")(2 3/16") (1/8"-1/4") 79 (3 1/8")
26 26 2-4 (1/16"-5/32") 26 2-4 (1/16"-5/32")
(1") (1") 26 (1") 59 (2 5/16") (1") 59 (2 5/16") 26 (1") 59 26 (2 5/16") (1") 59 (2 5/16") EH TH EH TH
2-5 (1/16"-3/16") 2-5 (1/16"-3/16") 55 (3/4"-1 3/16") (3/4"-1 3/16") 79 (3 1/8") 79 (3 1/8") 59 (2 5/16") 59 (2 5/16")
19-30
19-30
55
26
26
(1")
EH TH EH TH (2 3/16") (2 3/16") EH TH EH TH EH 3-6 (1/8"-1/4") TH (13/16"-1 1/8") 26 (1") (13/16"-1 1/8") (1") 26 (1")
20-28
20-28
(1/8"-1/4")
3-6
19-30
19-30
(1/8"-1/4")
(1/8"-1/4")
55
55
55
55
26
26
26
26
3-6
3-6 (1/8"-1/4") (2 3/16") (2 3/16") 26 (1") 59 26 (2 5/16") (1") 59 3-6 (2 5/16") (1/8"-1/4") (2 3/16") (2 3/16") 26 (1") 59 (2 5/16") 26 (1") 59 (2 5/16") (3/4"-1 3/16") (3/4"-1 3/16")
3-6
(1")
(1")
(1")
(1")
26
26
3-6 (1/8"-1/4") 3-6 26 (1/8"-1/4") (3/4"-1 3/16") 26 (1") (2 5/16") 26 (1") 59 3-6 (2 5/16") (1/8"-1/4") 3-6 (1/8"-1/4") (3/4"-1 3/16")(3/4"-1 3/16") 59 (1") (2 5/16") 26 (1") 59 (2 5/16") 5-8 (3/16"-5/16") 2 (1/16") (3/4"-1 3/16") 5-8 (3/16"-5/16") 2 (1/16") (3/4"-1 3/16")
(1")
(1")
19-30
19-30
19-3019-30
19-3019-30
(3/4"-1 3/16") 59
3
3-6
EH = installation height Concepta 25/30 TH = door height Concepta 40/50 (1/8"-1/4") (1/8") Dimensional data not binding. Dimensions in mm, inches are approximate. We reserve the right to alter specifications without notice.
79 (3 1/8") 79 (3 1/8") 26 (1") (1 3/8") (2 5/16") 26 59 (1") (2 5/16")
59 (1")
26
Ø35
(3/16"-5/16") 5-8 5-8 (3/16"-5/16") 19-3019-30 5-8 (3/16"-5/16") 5-8 (3/16"-5/16") 19-3019-30 81 (3 3/16")
TH
EH TH 2 (1/16") EH 2 TH (1/16") (3/4"-1 3/16") 2 EH (1/16") TH 2 (1/16") (3/4"-1 3/16")
EH
(3/4"-1 3/16")
(3/4"-1 3/16")
26 (1") 26 (1") 26 59 (1") 26 59 (1") 59 (2 5/16") 59 (2 5/16") 26 59 (1") 26 59 (1") 59 (2 5/16") 59 (2 5/16") EH TH EH TH
26 26 (2 5/16") (2 5/16") 26 26 (2 5/16") (2 5/16")
(1") (1") 26 (1") 81 26 (3 3/16") (1") 81 (3 3/16") (1") (1") 26 (1") 26 (1") 59 (2 5/16") 59 (2 5/16")
EH
3-6 EH (1/8"-1/4") TH EH TH 3-6 (1/8"-1/4") (3/4"-1 3/16") (3/4"-1 3/16") TH EH 3-6 TH (1/8"-1/4") 3-6 (1/8"-1/4") (3/4"-1 3/16") (3/4"-1 3/16") 26 (1") 30 26 (1") 26 (1") 30 26 (1")
19-30
19-30
19-30
19-30
59 26 (1") (2 5/16") 26 (1") 59 (2 5/16") 26 (1") 26 (1") 26 (1") 59 (2 5/16") 26 (1") 59 (2 5/16") 5-8 (3/16"-5/16") 2 (1/16") (1 3/16") 5-8 (3/16"-5/16") 2 (1/16") (1 3/16")
(3/16"-5/16") 5-8 2 5-8 (3/16"-5/16") 2 (1/16") 19-30 19-30 5-8 (3/16"-5/16") 2 5-8 (3/16"-5/16") 2 19-30 19-30
(1")
(1")
26
26
(1/16")
5-8 (1/16")
(3/16"-5/16")
(3/16"-5/16")
FC 7.130 2 (3/4"-1 3/16") (3/4"-1 3/16") 26 5-8 59 (1") (3/16"-5/16") (2 5/16") 2 5-8 (1/16") (1/16") (3/16"-5/16") 2 (3/4"-1 3/16") (3/4"-1 3/16") 26 59 (1") (2 5/16") www.hafele.com/us
(1/16")
(1/16")
(1/16")
30
30
30
30
5-8
2
(1 3/16")(1 3/16")
(1 3/16")(1 3/16")
(1")
(1")
59 (1")
59 (1")
26
26
26
26
(2 5/16")
(2 5/16")
EH TH EH TH EH TH 81 (3 3/16") EH TH 81 (3 3/16")
30
55
59 (2 5/16") 59 (2 5/16") 59 (2 5/16") 59 (2 5/16") (2 3/16") (1 3/16")
26 (1") 26 (1") 26 (1") 26 (1") 26 (1") 26 (1") 26 (1") 26 (1")
(3/16"-5/16") 2 (3/16"-5/16") 2 (2 3/16") (1 3/16")(1 3/16") (3/16"-5/16") 2 (3/16"-5/16") 2 (1 3/16") (1 3/16")
5-8 (1/16") 5-8 (1/16") 30 30 5-8 (1/16") 5-8 (1/16") 30 30
(1 3/16")
(1 3/16")
30
30
55
55
(2 3/16")
55 3055 30
(2 3/16") (1 3/16")
(2 3/16") (1 3/16")

