Page 717 - Furniture Cabinetry Hardware-FloorKitchenResource.com
P. 717
Drawer Slides
Single-Wall Drawer System
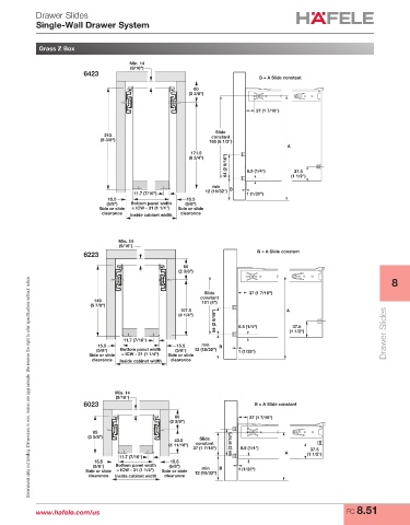
Grass Z Box
Min. 14
(9/16")
6423
B = A Slide constant
60
(2 3/8")
37 (1 7/16")
Slide
213 constant
(8 3/8") 165 (6 1/2")
A
171.5
64 (2 9/16") 6.5 (1/4") 37.5
(6 3/4")
min B (1 1/2")
11.7 (7/16") 12 (15/32") 1 (1/32")
15.5 15.5
(5/8") Bottom panel width (5/8")
Side or slide = ICW - 31 (1 1/4") Side or slide
clearance Inside cabinet width clearance
Min. 14
(9/16")
6223 B = A Slide constant
60
(2 3/8")
Dimensional data not binding. Dimensions in mm, inches are approximate. We reserve the right to alter specifications without notice.
8
Slide 37 (1 7/16")
constant
149 101 (4")
(5 7/8")
107.5 A
64 (2 9/16") 6.5 (1/4") 37.5
(4 1/4")
11.7 (7/16") (1 1/2") Drawer Slides
15.5 15.5 min B
(5/8") Bottom panel width (5/8") 12 (15/32") 1 (1/32")
Side or slide = ICW - 31 (1 1/4") Side or slide
clearance Inside cabinet width clearance
Min. 14
(9/16")
6023 B = A Slide constant
60 37 (1 7/16")
(2 3/8")
85
(3 3/8") Slide
43.5
(1 11/16") constant 64 (2 9/16")
37 (1 7/16") 6.5 (1/4") 37.5
11.7 (7/16") A (1 1/2")
15.5 15.5
(5/8") Bottom panel width (5/8") min B
Side or slide = ICW - 31 (1 1/4") Side or slide 12 (15/32") 1 (1/32")
clearance Inside cabinet width clearance
www.hafele.com/us FC 8.51

